LuxuryCambridge.com > Cambridge > 36 Sciarappa St #2

LRG Boston

(617) 233-5800

355 Boylston St

Boston, Ma 02116

36 Sciarappa St #2

Cambridge, MA

Property Description

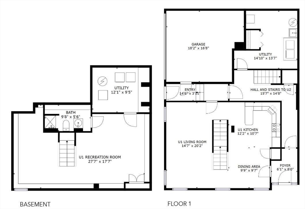
Enjoy loft-style living in this well-maintained, 2-bed, 2.5-bath townhouse-style apartment, in a vibrant city setting with roof deck with long views! Featuring an open plan living / dining room which connects to the renovated kitchen, oversized windows, french door with a juliette balcony, skylight, and option to rent up to 2 garage spaces! 2 good-sized bedrooms, including one with a convenient murphy bed, in-unit laundry, central A/C and direct access to the shared roof deck perfect for entertaining. Fantastic walkable location close to Kendall, Lechmere, MIT, Cambridgeside Galleria, a lively restaurant scene and more, and within easy reach of Boston and beyond!

offered at

$5,000

  • MLS #: 73473660
  • Bedrooms: 2
  • Full Baths: 2
  • Half Baths: 1
  • Living Area: 1,700 sqft Convert
  • Lot Size: 1,289 sqft Convert

Additional Details

Type: , Attached (Townhouse/Rowhouse/Duplex)

Area: East Cambridge

Zip Code: 02141

Unit Level: 2

Rooms and Dimensions

Total Rooms: 3

Contact: LRG Boston at (617) 233-5800

LuxuryCambridge.com

355 Boylston St. Boston, MA 02116

Map

Photos